Дизайн-проект квартиры в ЖК Серебряный Бор

Год: 2025
Город: Москва
Площадь квартиры: 3-комнатная, 89 м2
Тип проекта: Технический

Планировка и технические чертежи проекта

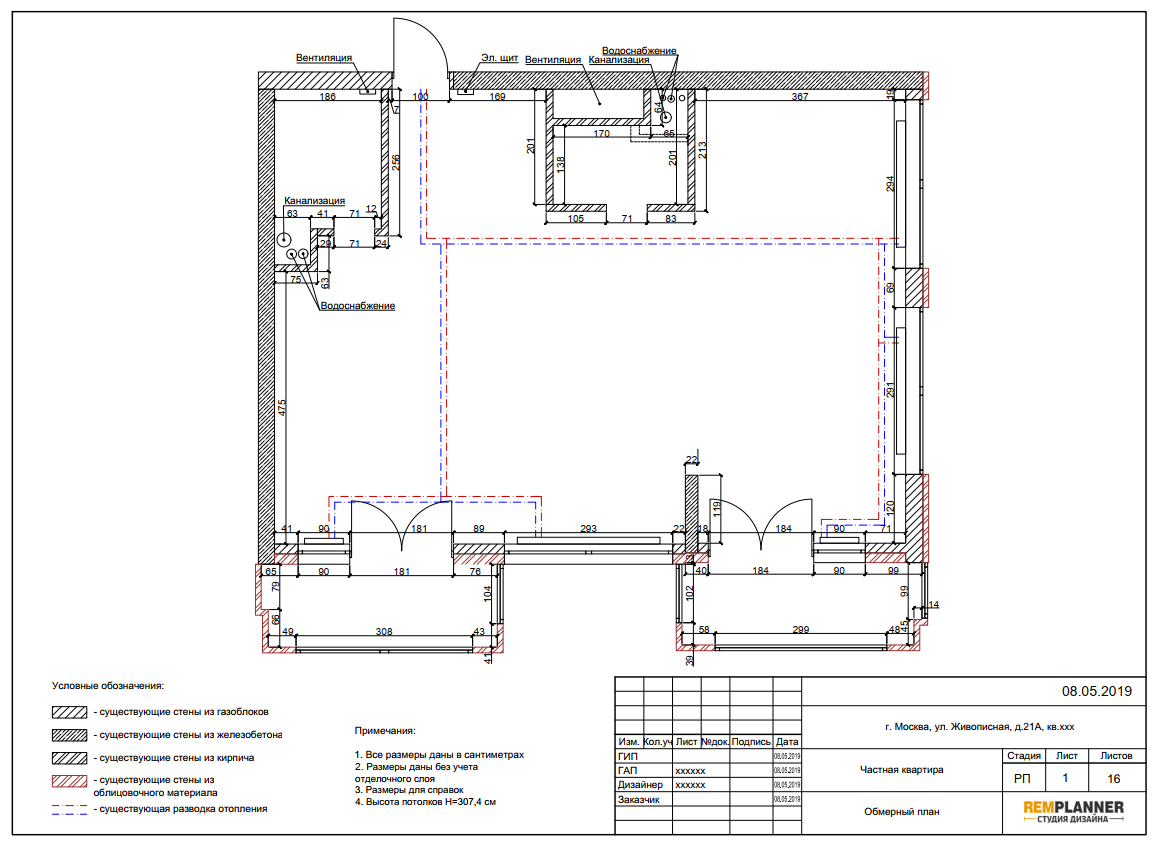
Обмерный план квартиры в ЖК Серебряный Бор
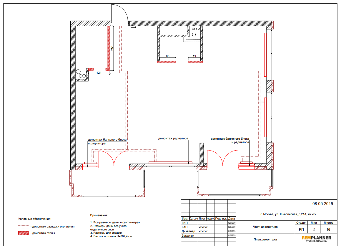
План демонтажа стен квартиры в ЖК Серебряный Бор
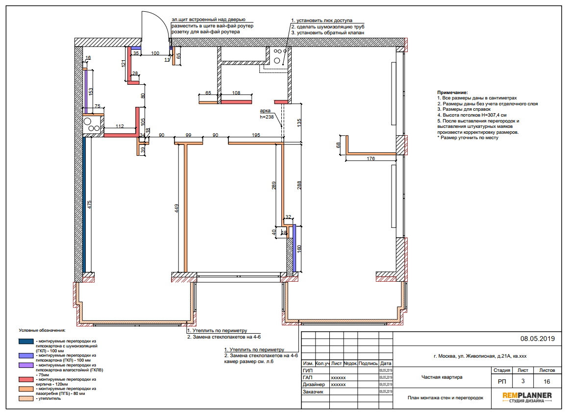
План монтажа перегородок квартиры в ЖК Серебряный Бор
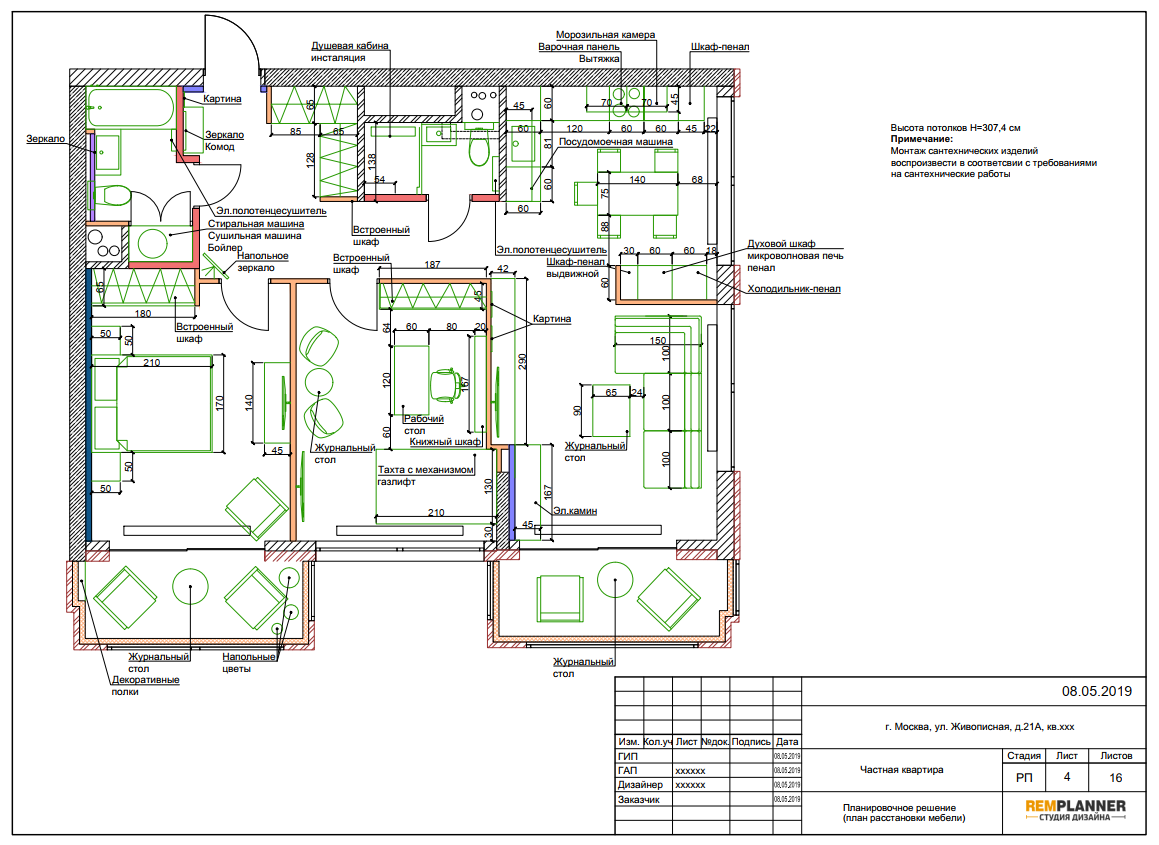
План расстановки мебели квартиры в ЖК Серебряный Бор
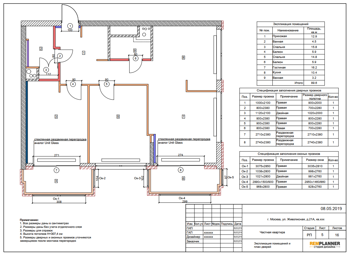
Экспликация помещений и дверей квартиры в ЖК Серебряный Бор
План сантехники квартиры в ЖК Серебряный Бор
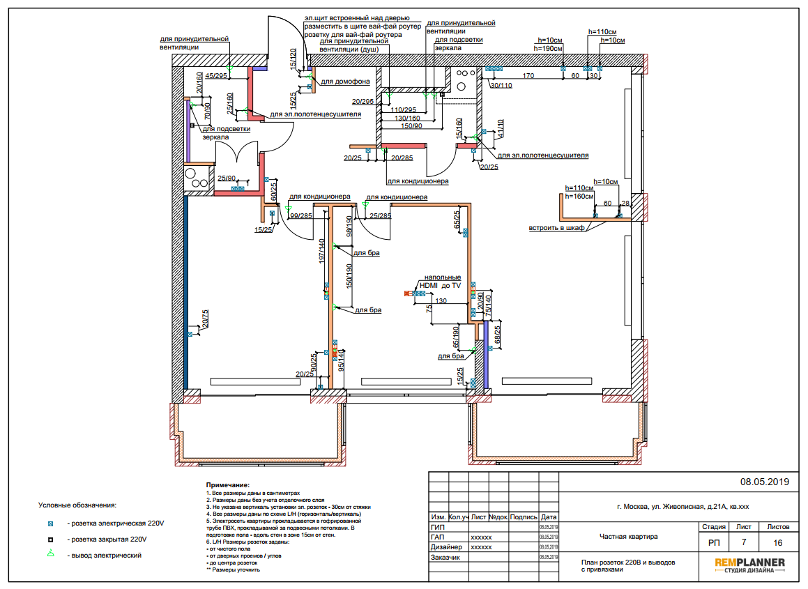
План розеток и выводов квартиры в ЖК Серебряный Бор
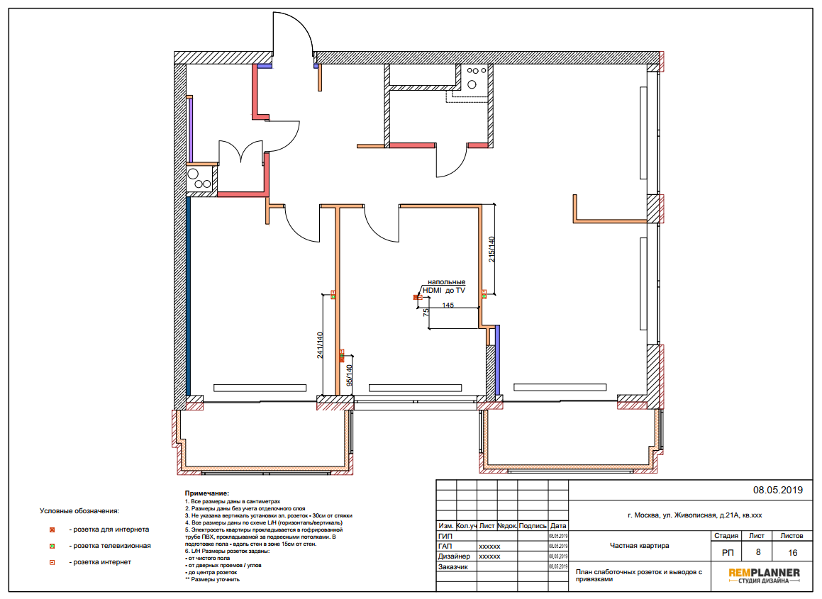
План слаботочки квартиры в ЖК Серебряный Бор
План потолков квартиры в ЖК Серебряный Бор
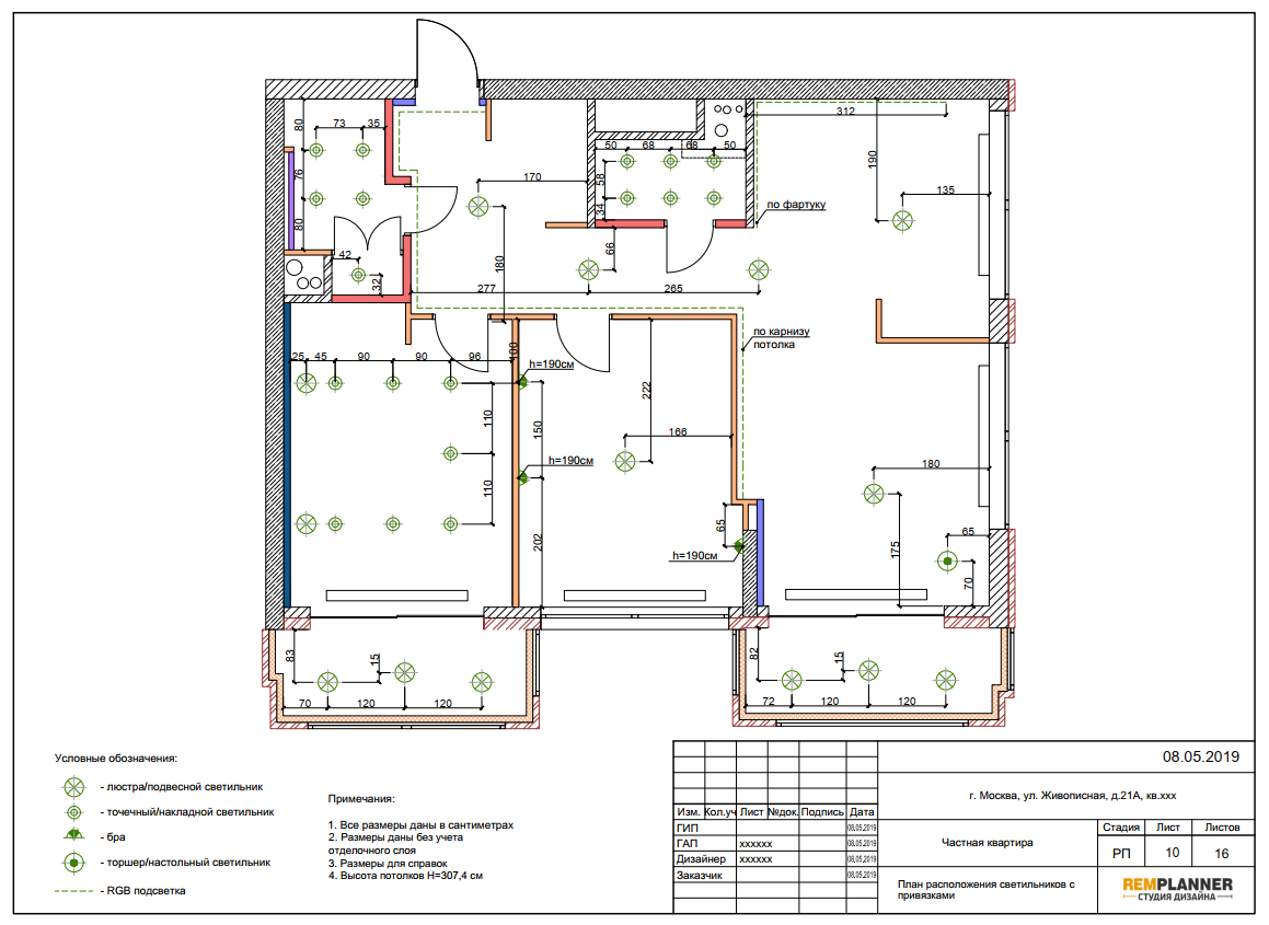
План освещения квартиры в ЖК Серебряный Бор
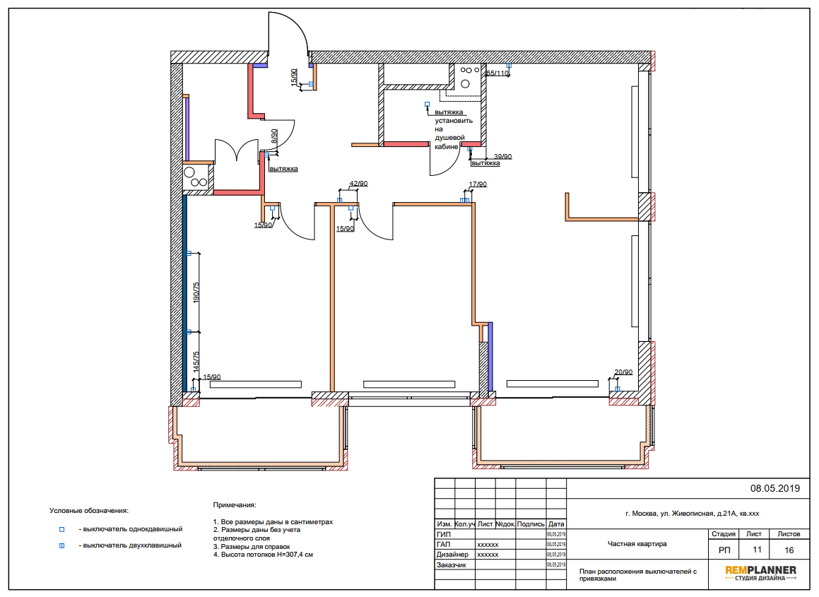
План выключателей квартиры в ЖК Серебряный Бор
Схема включения освещения квартиры в ЖК Серебряный Бор
План напольных покрытий квартиры в ЖК Серебряный Бор
План отделки стен квартиры в ЖК Серебряный Бор
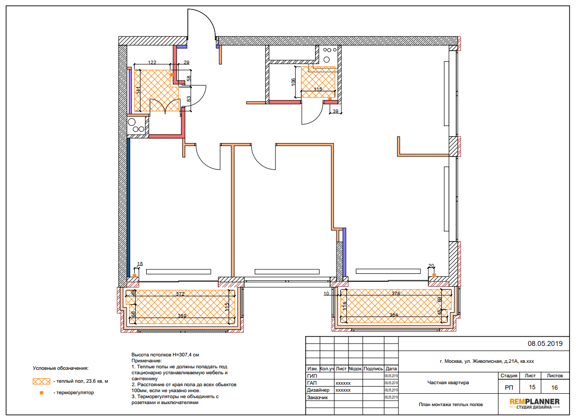
План теплых полов квартиры в ЖК Серебряный Бор
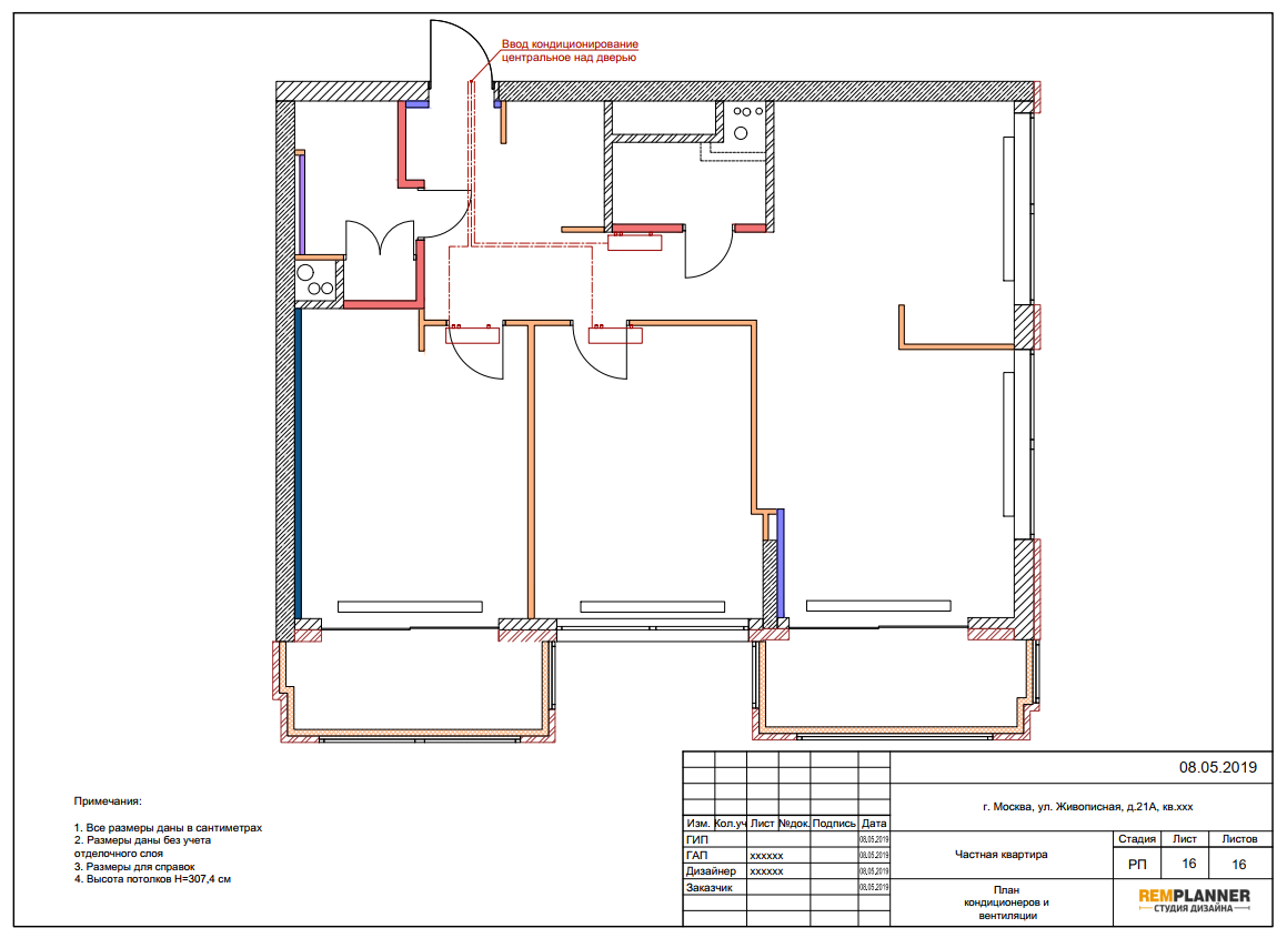
План кондиционеров квартиры в ЖК Серебряный Бор
Обсуждение проекта на форуме
Пока никто не оставил сообщений на этой странице. Начните обсуждение первым!
Создание нового сообщения

Добавлять новые сообщения могут только зарегистрированные пользователи.

Чертежи и картинки ничего не стоят, если за ними не стоят практические знания

Как выбрать материал и толщину каждой перегородки, чтобы потом не переделывать? Как расставить сантехнику так, чтобы прораб все не забраковал? Как разместить 50 розеток в квартире и не забыть ни одной? Как распланировать проходные выключатели? Какие виды отделки выбрать? Чем звукоизолировать стены? Нужны ли теплые полы?

Именно ради подобных вопросов и зовут профессионалов. Сами по себе проекты не имеют ценности, если за ними не стоит опыт.

Как проходит встреча с дизайнером?

Закажите дизайн-проект прямо сейчас

Мы свяжемся с вами и согласуем все детали
Планировочный
дизайн-проект
Технический
дизайн-проект
Интерьерный
дизайн-проект
Минимальная стоимость планировочного проекта составляет 60 000.
Минимальная стоимость технического проекта составляет 100 000.
Минимальная стоимость интерьерного проекта составляет 300 000.
Самое сложное, что есть в жилом проектировании - это квартиры малого метража. Вам хочется уместить всё, а пространства не хватает, борьба идет за каждый сантиметр. Далеко не все дизайнеры любят и умеют работать с небольшими площадями, здесь нужен опыт. Отсюда и фиксированная цена для малых метражей.
По указанной площади стоимость выбранного проекта составит
Стоимость 3D-визуализации и подбора материалов составит
У вас остались вопросы?
Подскажем. Расскажем. Поможем
звоните нам
Ежедневно с 10:00 до 20:00
приезжайте к нам
Кузнецкий мост
Варсонофьевский переулок д. 4