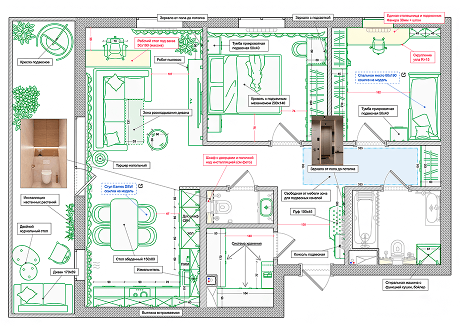
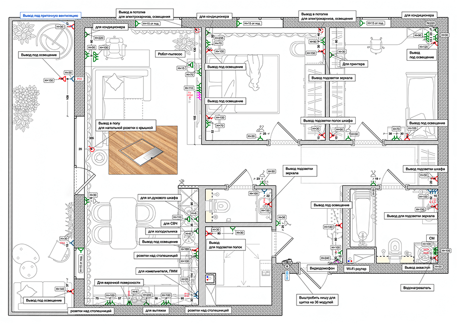
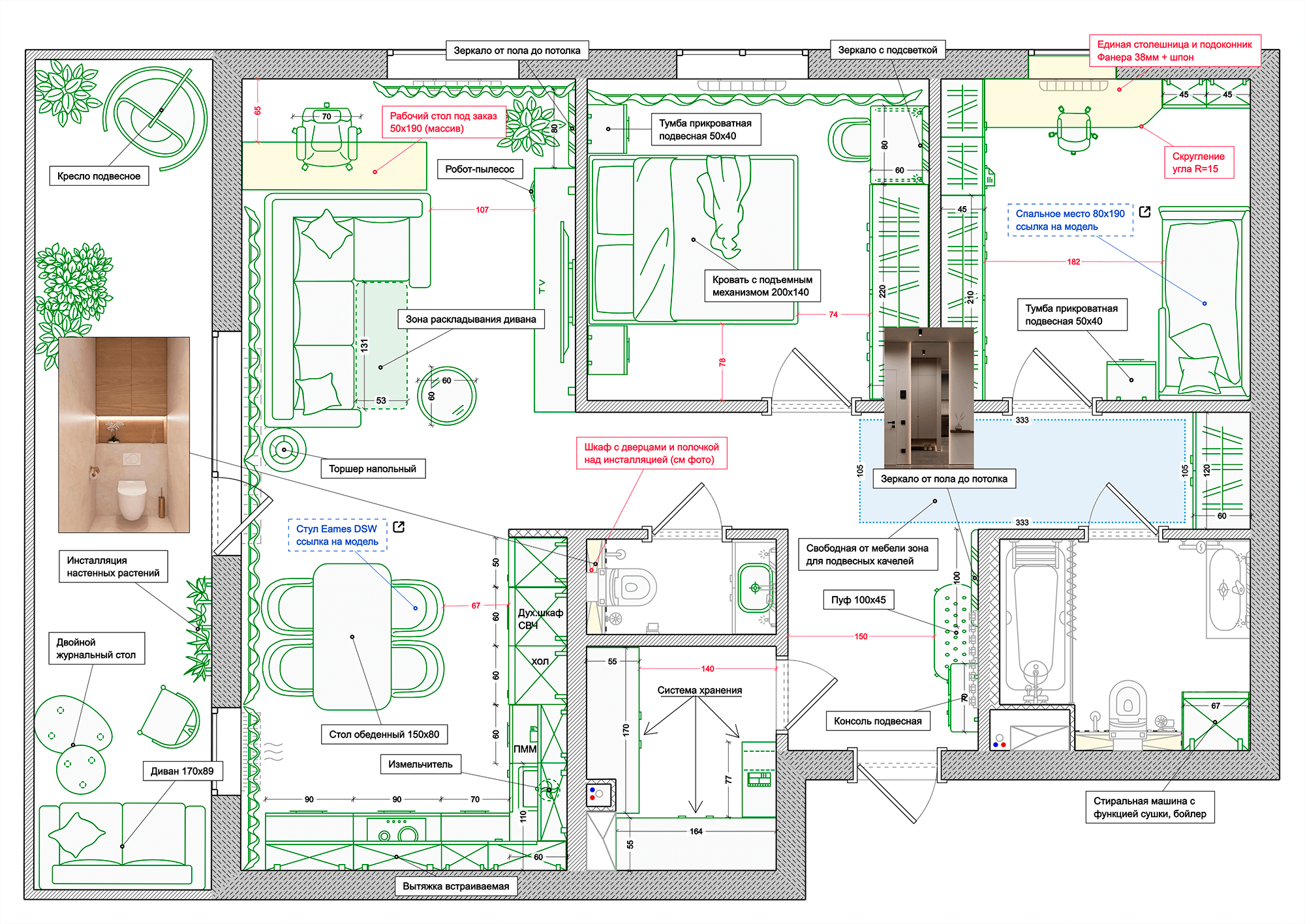
Программа для планирования ремонта и дизайна интерьера квартиры
Remplanner – программа, специально созданная для подготовки к капитальному ремонту квартир и других жилых помещений. Наш планировщик позволяет создавать рабочие чертежи, автоматические развертки стен и запускать интерактивную 3D-визуализацию нарисованного проекта квартиры любой конфигурации.
Открыть планировщик Remplanner








