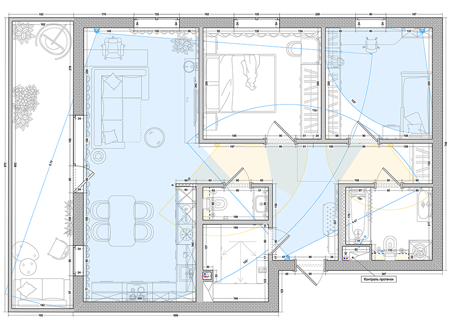
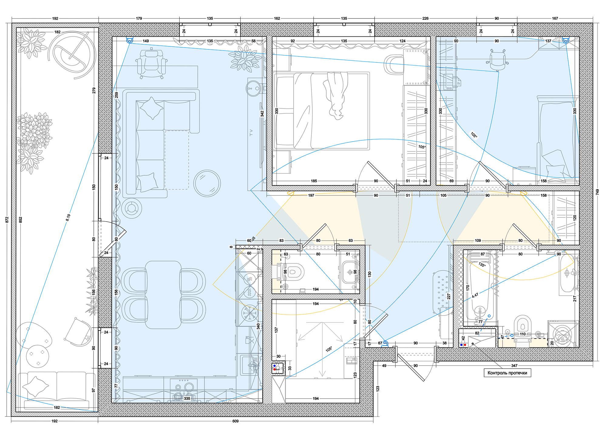
Программа для проектирования систем видеонаблюдения
Remplanner – это практичный инструмент для проектирования систем видеонаблюдения в жилых объектах. В программе можно размещать камеры, корректировать зоны обзора, формировать схемы подключения и получать понятные планы, которые удобно использовать для согласования и монтажа системы.
Создать новый проект бесплатно




