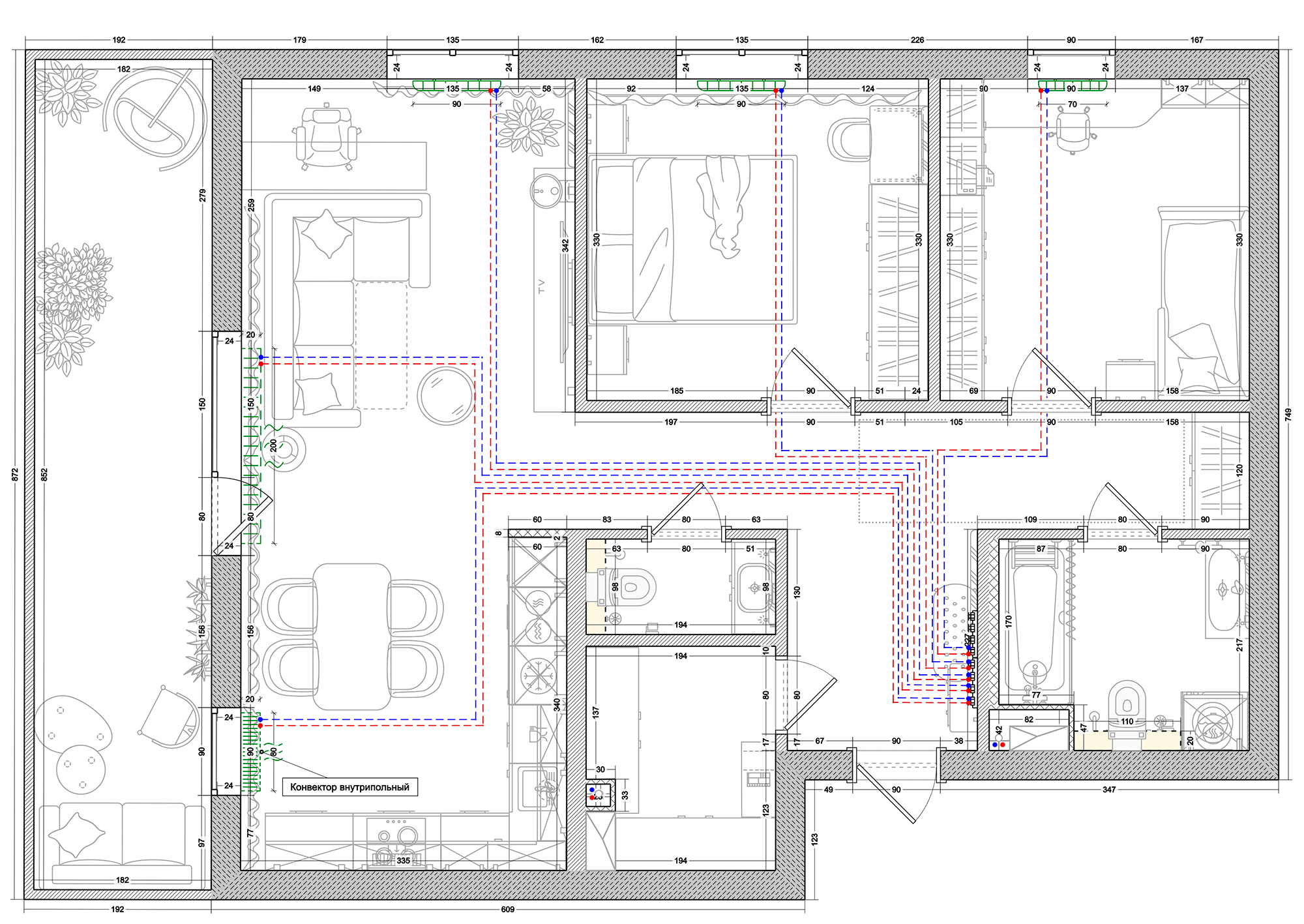
Программа для проектирования систем водоснабжения и отопления
Используйте Remplanner, чтобы нарисовать подробный план разводки труб, разместить сантехнику, радиаторы и инженерные узлы. Программа создает точные рабочие схемы и помогает визуализировать проект, обеспечивая грамотную подготовку к монтажу систем в жилых или коммерческих объектах.
Открыть планировщик Remplanner






